Проект №38 Дом с мансардой 6х9

брус камерной сушки
Создайте свой план для этого проекта
и отправьте его нам на расчет в один клик.
Под ключ (с отделкой) 6х9 Профилированный 140х140 мм 2150100 Заказать
Под ключ (с отделкой) 6х9 Профилированный 190х140 мм 2330100 Заказать
Под усадку (без отделки) 6х9 Cруб дома 140х140 мм 1300100 Заказать
Под усадку (без отделки) 6х9 Cруб дома 190х140 мм 1470100 Заказать


Комплектация

Площадь застройки: м2
Длина: 6 м
Ширина: 9 м
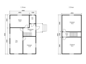
Общая площадь: 87.19 м2
Под ключ (с отделкой) Под усадку (без отделки)
Фундамент Свайно-винтовой или ж/б сваи (рассчитываются отдельно).
Гидроизоляция фундамента Рубероид в два слоя.
Основание (обвязка) Из обрезного бруса (100х150 мм. 150х150 мм. 150х200 мм. согласно выбранному сечению бруса). Обработка антисептиком.
Количество рядов основания 2 2
Цокольное перекрытие Обрезной брус камерной сушки 100х150/50х200 мм. с шагом 600 мм. Обработка антисептиком. Обрезной брус естественной влажности 100х150/50х200 мм. с шагом 600 мм. Обработка антисептиком.
Пол черновой Обрезная доска камерной сушки 20х100 мм. Обрезная доска естественной влажности 20х100 мм.
Внешние стены Профилированный брус камерной сушки, сечением 90х140/140х140/190х140 мм. по выбранной комплектации. Два вида профиля: 
1. С двух сторон, прямой со снятой фаской. 2. Снаружи под «блок- хаус», внутри прямой.
Высота сруба: Сруб одноэтажный- 18 венцов
Сруб с мансардой- 18 венцов
Сруб в 1,5 этажа- 18 венцов, далее каркас с внешней отделкой имитацией бруса.
Сруб в 2 этажа- 37 венцов
Профилированный брус естественной влажности, сечением 90х140/140х140/190х140 мм. по выбранной комплектации. Два вида профиля: 
1. С двух сторон, прямой со снятой фаской. 2. Снаружи под «блок- хаус», внутри прямой.
Высота сруба: Сруб одноэтажный- 18 венцов
Сруб с мансардой- 18 венцов
Сруб в 1,5 этажа- 18 венцов, далее каркас с внешней отделкой имитацией бруса.
Сруб в 2 этажа- 37 венцов
Межвенцовый утеплитель Джут (льноджутовое полотно). Джут (льноджутовое полотно).
Перегородки 1-го этажа Профилированный брус камерной сушки, сечением 90х140 мм. Профилированный брус естественной влажности, сечением 90х140 мм.
Перегородки 2-го этажа Каркасные: доска камерной сушки 40х100 мм, обшитые евровагонкой хвойных пород, камерной сушки, толщиной 12,5 мм. сорт «АВ» (дома с мансардой и в 1,5 этажа). Брусовые: профилированный брус камерной сушки, сечением 90х140 мм. (дома двухэтажные). Каркасные: доска естественной влажности 40х100 мм. (дома с мансардой и в 1,5 этажа). Брусовые: профилированный брус естественной влажности, сечением 90х140 мм. (дома двухэтажные).
Сборка сруба Берёзовый нагель. Берёзовый нагель.
Соединение углов сруба «Тёплый угол» (коренной шип). «Тёплый угол» (коренной шип).
Высота от пола до потолка Сруб одноэтажный: 2,4 м. (18 венцов) Сруб с мансардой: 1-ый этаж- 2,4 м. (18 венцов)
2-ой этаж (мансарда)- 2,3 м.
Сруб в полтора и два этажа:
1-ый этаж 2,4 м ±4 см. (18 венцов)
2-ой этаж 2,4 м ±4 см. каркасные аттиковые стены (боковые) высотой 1,5 м. в полутораэтажном доме
2,4 м ±4 см (поднят брусом на 18 венцов) в двухэтажном доме.
Сруб одноэтажный: 2,5 м. (18 венцов) Сруб с мансардой: 1-ый этаж- 2,5 м. (18 венцов)
2-ой этаж (мансарда)- 2,4 м.
Сруб в полтора и два этажа:
1-ый этаж 2,5 м ±4 см. (18 венцов)
2-ой этаж 2,5 м ±4 см. каркасные аттиковые стены (боковые) высотой 1,5 м. в полутораэтажном доме
2,5 м ±4 см (поднят брусом на 18 венцов) в двухэтажном доме.
Утепление (пол, потолок, мансарда) Минеральная вата Knauf 150 мм. Отсутствует.
Пароизоляция (пол, потолок, мансарда) Ондутис R70. Отсутствует.
Пол чистовой Шпунтованная доска камерной сушки толщиной 36 мм. сорт АВ. по рейке 20х40 мм. либо шпунтованная ДСП 16 мм. по разряженной обрешётке из обрезной доски камерной сушки 20х100 мм. Отсутствует.
Потолки Евровагонка камерной сушки толщиной 12,5 мм. сорт АВ. Отсутствует.
Окна Деревянные, двойного остекления. Отсутствуют.
Двери Входная- металлическая, утеплённая (Россия). Межкомнатные- филёнчатые. Отсутствуют.
Наличники на окна и двери Наличник деревянный, строганый, камерной сушки 70-90 мм. Отсутствует.
Шиповка оконных и дверных проёмов (ройки) Да. Отсутствует.
Лестница (при наличии второго этажа) Деревянная, одно или двухмаршевая. Перила- заводские резные, балясины- заводские точеные, устанавливаются стартовые точёные столбы. Ступени 40х200 мм. Тетива лестницы- 90х140 мм. Отсутствует.
Крыша Двускатная, ломаная или вальмовая в соответствии с проектом. Двускатная, ломаная или вальмовая в соответствии с проектом.
Стропильная система Выполнена из обрезной доски камерной сушки 40х150 мм. Шаг установки стропильных ног 600 мм. Выполнена из обрезной доски естественной влажности 40х150 мм. Шаг установки стропильных ног 600 мм.
Обрешётка Выполняется из обрезной доски камерной сушки толщиной 20-22 мм. Шаг крепления обрешетки 300 мм. Контробрешётка выполняется из бруска камерной сушки 40х50 мм. Крепится по стропильным ногам (вентиляционный зазор). Выполняется из обрезной доски естественной влажности толщиной 20-22 мм. Шаг крепления обрешетки 300 мм. Контробрешётка выполняется из бруска естественной влажности 40х50 мм. Крепится по стропильным ногам (вентиляционный зазор).
Подкровельная мембрана Ондутис А100 Ондутис А100
Кровельное покрытие (на выбор) Ондулин, Черепица Ондулин. Ондулин, Черепица Ондулин.
Фронтоны (при наличии) Каркас из обрезной доски камерной сушки 40х150 мм. Обшиваются вагонкой камерной сушки толщиной 16 мм. сорт АВ по контррейке 20х40 мм. (вентиляционный зазор). Влаго-ветрозащита Ондутис А100. Монтаж вентиляционных решёток. Каркас из обрезной доски естественной влажности 40х150 мм. Обшиваются вагонкой камерной сушки толщиной 16 мм. сорт АВ по контррейке 20х40 мм. (вентиляционный зазор). Влаго-ветрозащита Ондутис А100. Монтаж вентиляционных решёток.
Свесы крыши Ширина 400 мм. Подшиваются вагонкой камерной сушки, сорт АВ. Ширина 400 мм. Подшиваются вагонкой камерной сушки, сорт АВ.
Терраса/балкон (при наличии) Устанавливаются опорные столбы из строганного бруса камерной сушки 140х140 мм. с компенсационными болтами под усадку. Устанавливаются опорные столбы из строганного бруса естественной влажности 140х140 мм. с компенсационными болтами под усадку.
Отделка потолка террасы/балкона Евровагонка камерной сушки толщиной 12,5 мм. сорт АВ. Отсутствует.
Пол террасы/балкона Шпунтованная доска камерной сушки толщиной 36 мм. сорт АВ. Отсутствует.
Ограждение террасы/балкона Перила- строганая доска. Балясины- точеные, фигурные. Либо ограждение в скандинавском стиле. Устанавливаются ступени у входа. Отсутствует.
Допуск на геометрические параметры сруба Составляет +/- 50 мм по длине с каждой стороны. Составляет +/- 50 мм по длине с каждой стороны.
Допускается стыковка бруса, вагонки и половой доски По всему периметру стен дома (если ширина и длина дома более 6,0 метров). Вагонки и доски пола в каждой отдельной комнате. По всему периметру стен дома (если ширина и длина дома более 6,0 метров).
Допуски по брусу, доске +/- 5 мм. +/- 5 мм.
В стоимость включена Доставка комплекта материала в радиусе 500 км. от г. Пестова Новгородской области и сборка дома на вашем участке. Доставка комплекта материала в радиусе 500 км. от г. Пестова Новгородской области и сборка дома на вашем участке.
Гарантия 5 лет. 2 года.
Бытовка строительная 2,0х3,0 м. каркасно-щитовая. Стоимость 23000 руб. Остаётся на участке Заказчика. Стоимость 23000 руб. Остаётся на участке Заказчика.
Туалет 1,0х1,0 м. каркасно-щитовой. Стоимость 12000 руб. Остаётся на участке Заказчика. Стоимость 12000 руб. Остаётся на участке Заказчика.
Генератор Стоимость аренды на весь срок строительства 10000 руб. ГСМ за счёт Заказчика. Стоимость аренды на весь срок строительства 10000 руб. ГСМ за счёт Заказчика.

Строительство дома производится в двух видах: сразу под ключ и под усадку, когда сруб отстаивается определенное время.

В период холодов лучше всего строить дома из зимнего леса, в летнее время - из сухого бруса (дерева камерной сушки).

Максимально подходящими для дачи или сада считают экономичные домики на винтовых сваях, в нашем каталоге имеются одноэтажные и полуторатажные варианты.

Для ПМЖ (постоянного проживания), рекомендуем надежные и теплые двухэтажные и одноэтажные коттеджи и дома на ленточных и плитных фундаментах.

Мы можем предложить несколько размеров профбруса: 140х140 мм и 190х140 мм. Постройки из вертикального бруса возводятся из бруса 140х190 мм.

Дополнительные услуги


Дом из бруса размером 6х9 м. проекта 38, полутораэтажный — это комфортное постоянное жилье с продуманной планировкой. Применяются надежные новейшие материалы, монтаж проводится на винтовых сваях. Площадь дома 87.19 кв.м.. Во все комплекты входит паро- гидроизоляция междуэтажных перекрытий и пола, утеплитель минвата от 100 мм, тип крыши двускатная. Наша организация недорого и оперативно возведет в Балашихе брусовой дом по типовому или индивидуальному проекту любой сложности.

Популярные проекты

хит продаж брус камерной сушки
Тип: с маленькой террасой
Общая площадь: 52.22
1354600
от 1290100
хит продаж брус камерной сушки
Тип: с балконом, с маленькой террасой
Общая площадь: 107.32
2499100
от 2380100
хит продаж брус камерной сушки
Тип: с балконом, с большой террасой
Общая площадь: 1562
2299600
от 2190100

Заказать или задать вопрос




СК "Орион"
Отзывы из Яндекс Карт
4.9
123 отзывов
Дополнительные услуги 88%
2 154 оценок
Комплектации 89%
1 535 оценок
Планировки 90%
2 484 оценок
Проекты 93%
2 231 оценок
С
Люся Л.01.02.2025 г.
Бригада работала как швейцарские часы — слаженно, четко и без простоев. При этом ребята всегда были вежливы, аккуратны и готовы ответить на любой наш вопрос. В результате получили тёплый и уютный каркасный дом для постоянного проживания, в который сразу же переехали и чувствуем себя прекрасно.
Отзывы из Google Карт
4.8
74 отзывов
Дополнительные услуги 88%
2 154 оценок
Комплектации 89%
1 535 оценок
Планировки 90%
2 484 оценок
Проекты 93%
2 231 оценок
С
Захар04.05.2025 г.
Менеджер компании терпеливо отвечал на все мои вопросы, даже на те, что касались не самого строительства, а дальнейшего обслуживания дома – чувствуется, что люди болеют за свое дело и дорожат клиентами.
Отзывы из 2гис
4.9
37 отзывов
Дополнительные услуги 88%
2 154 оценок
Комплектации 89%
1 535 оценок
Планировки 90%
2 484 оценок
Проекты 93%
2 231 оценок
С
Володя М.20.07.2025 г.
Каркасный дом для постоянного проживания оказался прекрасным выбором — тихо, сухо и очень уютно, а главное — строительство не заняло много времени.

Заказать или задать вопрос

Заказать звонок