Проект №46 Двухэтажный Дом 7х9

каркас из строганой доски
Создайте свой план для этого проекта
и отправьте его нам на расчет в один клик.
Каркасный дом (150 мм) 7х9 Толщина утепления 150 мм 3340100 Заказать
Каркасный дом (200 мм) 7х9 Толщина утепления 200 мм 3620100 Заказать

Для того, чтобы получить свою персональную планировку, пользуйтесь планировщиком.

При помощи планировщика вы имеете возможность создавать подходящие эскизы, чертежи, схемы, планы уникального дома с мансардой, эркером, с несколькими спальнями. Таким образом получится идеальный проект, 100% отвечающий вашим запросам.

Вы имеете возможность выбрать вид крыши: четырехскатная, двускатная и вальмовая. Двухскатную считают особенно популярной у малометражных построек.

Востребованные размеры коттеджей и домов на текущий момент: мини - до 50 м2 (как правило, одноэтажные дома); компактные - от 70м2 до 100 квадратов (обычно двухэтажные); большие дома - от 150м2 и больше.

Можем предложить дуплексы - каркасные дома с 2-мя входами, рассчитанные на проживание сразу двух семей. Такие дома строятся для нескольких хозяев и разделены на две половины, для каждой половины с отдельным входом.


Наши работы

Перейти в галерею


Комплектация

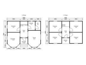
Площадь застройки: 97.2 м2
Длина: 7 м
Ширина: 9 м
Общая площадь: м2
Исполнение Под ключ (с отделкой)
Фундамент Свайно-винтовой или ж/б сваи (рассчитываются отдельно).
Гидроизоляция фундамента Рубероид в два слоя.
Основание (обвязка) Из обрезного бруса 150х150 мм. 150х200 мм. согласно выбранной толщине утепления. Торцевая доска строганая 45х145/45х195+/-5 мм. согласно выбранной толщине утепления. Обработка антисептиком.
Цокольное перекрытие Строганая доска камерной сушки 45х145/45х195+/-5 мм. с шагом 590 мм. Обработка антисептиком.
Пол черновой Обрезная доска камерной сушки 20х100 мм.
Влаго-ветрозащита чернового пола Мембрана Ондутис А100.
Внешние стены Стойки каркаса из строганой доски камерной сушки 45х145/45х195+/-5 мм. с шагом 590 мм. Верхняя двойная и нижняя обвязки из строганой доски камерной сушки 45х145/45х195+/-5 мм. Разгрузочный ригель из строганой доски 45х145+/-5 мм. Укосины из строганой доски 20х95 мм.
Перегородки Стойки каркаса из строганой доски камерной сушки 45х95+/-5 мм. с шагом 590 мм. Верхняя двойная и нижняя обвязки из строганой доски 45х95+/-5 мм. Разгрузочный ригель из строганой доски камерной сушки 45х145+/-5 мм. Укосины из строганой доски камерной сушки 20х95 мм.
Сборка каркаса На гвозди.
Высота от пола до потолка Дом одноэтажный: 2,5 м. Дом с мансардой: 1-ый этаж- 2,5 м.
2-ой этаж (мансарда)- 2,3 м.
Дом в полтора и два этажа:
1-ый этаж 2,5 м.
2-ой этаж 2,4 м. в полутораэтажном доме
2,5 м. в двухэтажном доме.
Внешняя отделка стен Имитация бруса камерной сушки, сорт АВ, толщиной 17 мм. Монтаж через строганый брусок камерной сушки 45х45+/-5 мм. (вентилируемый фасад). Влаго-ветрозащитная мембрана- Ондутис А100.
Внутренняя отделка стен, перегородок Евровагонка камерной сушки, сорт АВ, толщиной 12,5 мм. по строганой рейке 20х40+/-5 мм. либо ГКЛ 12,5 мм.
Отделка потолка Евровагонка камерной сушки, сорт АВ толщиной, 12,5 мм. по строганой рейке 20х40+/-5 мм. либо ГКЛ 12,5 мм.
Пол чистовой Шпунтованная доска камерной сушки толщиной 35-36 мм. сорт АВ. по строганой рейке 20х40+/-5 мм. либо шпунтованная ДСП 16 мм. по разряженной обрешётке из строганой доски камерной сушки 20х95+/-5 мм.
Утепление (пол, потолок) Минеральная вата Knauf 150/200 мм. согласно выбранной толщине утепления.
Утепление стен Плитный утеплитель Rockwool, толщиной 150/200 мм. согласно выбранной толщине утепления.
Звукоизоляция перегородок Плитный утеплитель Rockwool, толщиной 100 мм.
Пароизоляция (стены, перегородки, пол, потолок) Плёнка Ондутис R70. Дополнительная герметизация нахлёстов/примыканий пароизоляционной плёнки клейкой лентой Delta.
Окна Двухкамерные стеклопакеты ПВХ белого цвета, профиль 60 мм. В комплекте: отливы, подоконники, москитные сетки.
Двери Входная- металлическая, утеплённая (Россия). Межкомнатные- филёнчатые.
Наличники на окна и двери Наличник деревянный, строганый, камерной сушки 70-90 мм. с двух сторон.
Лестница (при наличии второго этажа) Деревянная, одно или двухмаршевая. Перила- заводские резные, балясины- заводские точеные, устанавливаются стартовые точёные столбы. Ступени 40х200 мм. Тетива лестницы- 90х140 мм.
Крыша Двускатная, ломаная или вальмовая в соответствии с проектом.
Стропильная система Выполнена из строганой доски камерной сушки 45х145/45х195+/-5 мм. Шаг установки стропил 590 мм.
Обрешётка Выполняется из строганой доски камерной сушки толщиной 20х95+/-5 мм. Шаг крепления обрешетки 350 мм. Контробрешётка выполняется из строганого бруска камерной сушки 45х45+/-5 мм. Крепится по стропилам (вентиляционный зазор).
Подкровельная мембрана Ондутис А100
Кровельное покрытие (на выбор) Металлочерепица 0,45 мм. Цвет на выбор.
Фронтоны (при наличии) Каркас из строганой доски камерной сушки 45х145/45х195+/-5 мм. Обшиваются имитацией бруса камерной сушки, сорт АВ, толщиной 17 мм. Монтаж через строганый брусок камерной сушки 45х45+/-5 мм. (вентилируемый фасад). Влаго-ветрозащитная мембрана- Ондутис А100. Монтаж вентиляционных решёток.
Свесы крыши Ширина 400 мм. Подшиваются вагонкой камерной сушки, сорт АВ.
Терраса/балкон (при наличии) Устанавливаются опорные столбы из строганного бруса камерной сушки 140х140 мм.
Отделка потолка террасы/балкона Евровагонка камерной сушки толщиной 12,5 мм. сорт АВ.
Пол террасы/балкона Шпунтованная доска камерной сушки толщиной 35-36 мм. сорт АВ.
Ограждение террасы/балкона Перила- строганая доска. Балясины- точеные, фигурные. Либо ограждение в скандинавском стиле. Устанавливаются ступени у входа.
Допуск на геометрические параметры Составляет +/- 50 мм по длине с каждой стороны.
Допускается стыковка имитации бруса, вагонки и половой доски По всему периметру стен дома (если ширина и длина дома более 6,0 метров). Вагонки и доски пола в каждой отдельной комнате.
Допуски по имитации бруса, вагонке, доске +/- 5 мм.
В стоимость включена Доставка комплекта материала в радиусе 500 км. от г. Пестова Новгородской области и сборка дома на вашем участке.
Гарантия 5 лет.
Бытовка строительная 2,0х3,0 м. каркасно-щитовая. Стоимость 23000 руб. Остаётся на участке Заказчика.
Туалет 1,0х1,0 м. каркасно-щитовой. Стоимость 12000 руб. Остаётся на участке Заказчика.
Генератор Стоимость аренды на весь срок строительства 15000 руб. ГСМ за счёт Заказчика.

Строительство домов выполняется в двух видах: под усадку, когда сруб будет отстаиваться на протяжении определенного времени и под ключ.

В холодное время года эффективнее строить в мороз, чтобы каркас не промок, в летний период - не под дождем.

Оптимальными для сада или дачи являются дома на винтовых сваях, на нашем сайте вы увидите одноэтажные и полуторатажные варианты.

В случае если дом будет строиться для ПМЖ (постоянного проживания), рекомендуем теплые одноэтажные и двухэтажные коттеджи и дома на плитном и ленточном фундаменте.

Существует два варианта толщины утепления: 150 мм и 200 мм. Каркасные дома с утеплителем сто пятьдесят миллиметров получаются дешевле, но не такими теплыми.

Дополнительные услуги


Каркасный дом балконом и эркером, согласно проекту 46 двухэтажный с теплой двускатной разновидностью крыши, обращает на себя повышенное внимание экологической чистотой, в связи с использованием ориентированно-стружечных плит, базальтовой и минеральной ваты, а это создает отличную морозостойкость, замечательный микроклимат в доме. Габариты дома составляют 7х9 м., суммарная пригодная для жизни площадь - кв.м.. Наша организация в кратчайшие сроки построит дом из каркаса по индивидуальному или типовому плану в Балашихе в удобное для вас время года и на любом типе грунта.

Популярные проекты


Дома из бруса 9х9 Каркасные дома 9х10 Двухэтажные бани из бруса
хит продаж
Тип:
Общая площадь: 2
2604100
от 2480100
хит продаж
Тип:
Общая площадь: 2
2341600
от 2230100
хит продаж
Тип:
Общая площадь: 2
2877100
от 2740100
Дома из бруса

Заказать или задать вопрос




СК "Орион"
Отзывы из Яндекс Карт
4.9
119 отзывов
Дополнительные услуги 88%
2 154 оценок
Комплектации 89%
1 535 оценок
Планировки 90%
2 484 оценок
Проекты 93%
2 231 оценок
С
Вивиана Золотарева22.05.2025 г.
Отдельное спасибо за безупречную подготовку участка и фундамента, ведь это основа долговечности, и мы абсолютно уверены в надежности нашего дома.
Отзывы из Google Карт
4.8
72 отзывов
Дополнительные услуги 88%
2 154 оценок
Комплектации 89%
1 535 оценок
Планировки 90%
2 484 оценок
Проекты 93%
2 231 оценок
С
Вета Журавлёва14.07.2025 г.
Очень понравилось, что компания использует только хорошо просушенный брус — это гарантия того, что геометрия дома не нарушится со временем, и он будет радовать нас долгие годы.
Отзывы из 2гис
4.9
37 отзывов
Дополнительные услуги 88%
2 154 оценок
Комплектации 89%
1 535 оценок
Планировки 90%
2 484 оценок
Проекты 93%
2 231 оценок
С
Аврора Дьяконова22.01.2025 г.
Сомневалась между каркасной технологией и брусом, но менеджер Виктор подробно объяснил все плюсы и минусы, помог выбрать оптимальный вариант для моего участка и бюджета, за что ему отдельное спасибо.

Заказать или задать вопрос

Заказать звонок

Напишите нам
Здравствуйте! Отправьте нам вопрос или заявку в WhatsApp