Дома под ключ в Балашихе
Отзывы из Яндекс Карт
4.9
79 отзывов
Дополнительные услуги 88%
2 154 оценок
Комплектации 89%
1 535 оценок
Планировки 90%
2 484 оценок
Проекты 93%
2 231 оценок
С
Никола04.02.2026 г.
Дом 8х12 с цокольным этажом и двумя гаражами — мечта. Но стройка заняла почти полгода вместо четырёх, потому что сначала ошиблись в документах. Исправили, но осадочек остался.
С
Саша Морозов23.08.2025 г.
Самый большой страх при строительстве несоблюдение сроков но здесь всё было сдано точно в день указанный в договоре и даже мелочи были доделаны несмотря на то что дом уже был фактически готов и можно было бы уже не уделять им внимание но для этой компании важно довести всё до совершенства.
Отзывы из Google Карт
4.8
48 отзывов
Дополнительные услуги 88%
2 154 оценок
Комплектации 89%
1 535 оценок
Планировки 90%
2 484 оценок
Проекты 93%
2 231 оценок
С
Камиль Б.20.01.2025 г.
Я много читал о преимуществах каркасных домов, но на практике убедился в их надежности только после того, как компания Брус дома построила мне такое жилье — тихо, сухо и невероятно комфортно.
Отзывы из 2гис
4.9
37 отзывов
Дополнительные услуги 88%
2 154 оценок
Комплектации 89%
1 535 оценок
Планировки 90%
2 484 оценок
Проекты 93%
2 231 оценок
С
Василина Винокурова16.04.2026 г.
Забор и ландшафт не делали, только дом. Но даже так участок преобразился. Ребята почистили территорию после стройки лучше, чем я ожидала — даже доски с гвоздями не оставили. Дом 6х8 с верандой получился солнечным и очень тёплым.
С
Эрика Золотова22.03.2026 г.
Строили баню с печкой и маленькой купелью. Печь получилась — загляденье, камни долго держат жар. Но вот полки сначала сделали слишком узкие, пришлось переделывать — отреагировали сразу, без споров.
С
Прохор И.22.01.2026 г.
Подумал и решил заказать сразу дом с цокольным этажом и двумя гаражами, площадь 150 квадратов. Прораб попался толковый, всё объяснял, показывал. Только крышу сделали из другого материала, чем договарились, пришлось менять за их счёт.
С
Ангелина Г.11.04.2025 г.
Очень переживала, как пройдет стройка, но профессионалы из Брус дома успокоили меня своим спокойствием и грамотными консультациями, а результат превзошел ожидания — дом просто загляденье.


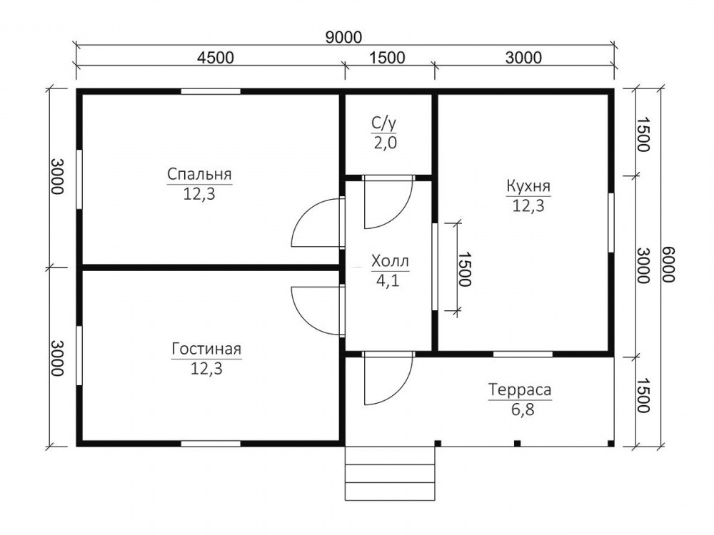
Проект №49 Дом 6х9

каркас из строганой доски
Каркасный дом (150 мм) 6х9 Толщина утепления 150 мм 1590100 Заказать
Каркасный дом (200 мм) 6х9 Толщина утепления 200 мм 1720100 Заказать

Для того, чтобы получить свою персональную планировку, пользуйтесь планировщиком.

При помощи планировщика вы имеете возможность создавать подходящие эскизы, чертежи, схемы, планы уникального дома с мансардой, эркером, с несколькими спальнями. Таким образом получится идеальный проект, 100% отвечающий вашим запросам.

Вы имеете возможность выбрать вид крыши: четырехскатная, двускатная и вальмовая. Двухскатную считают особенно популярной у малометражных построек.

Востребованные размеры коттеджей и домов на текущий момент: мини - до 50 м2 (как правило, одноэтажные дома); компактные - от 70м2 до 100 квадратов (обычно двухэтажные); большие дома - от 150м2 и больше.

Можем предложить дуплексы - каркасные дома с 2-мя входами, рассчитанные на проживание сразу двух семей. Такие дома строятся для нескольких хозяев и разделены на две половины, для каждой половины с отдельным входом.


Наши работы

Перейти в галерею


Комплектация

Площадь застройки: 49.8 м2
Длина: 6 м
Ширина: 9 м
Общая площадь: м2
Исполнение Под ключ (с отделкой)
Фундамент Свайно-винтовой или ж/б сваи (рассчитываются отдельно).
Гидроизоляция фундамента Рубероид в два слоя.
Основание (обвязка) Из обрезного бруса 150х150 мм. 150х200 мм. согласно выбранной толщине утепления. Торцевая доска строганая 45х145/45х195+/-5 мм. согласно выбранной толщине утепления. Обработка антисептиком.
Цокольное перекрытие Строганая доска камерной сушки 45х145/45х195+/-5 мм. с шагом 590 мм. Обработка антисептиком.
Пол черновой Обрезная доска камерной сушки 20х100 мм.
Влаго-ветрозащита чернового пола Мембрана Ондутис А100.
Внешние стены Стойки каркаса из строганой доски камерной сушки 45х145/45х195+/-5 мм. с шагом 590 мм. Верхняя двойная и нижняя обвязки из строганой доски камерной сушки 45х145/45х195+/-5 мм. Разгрузочный ригель из строганой доски 45х145+/-5 мм. Укосины из строганой доски 20х95 мм.
Перегородки Стойки каркаса из строганой доски камерной сушки 45х95+/-5 мм. с шагом 590 мм. Верхняя двойная и нижняя обвязки из строганой доски 45х95+/-5 мм. Разгрузочный ригель из строганой доски камерной сушки 45х145+/-5 мм. Укосины из строганой доски камерной сушки 20х95 мм.
Сборка каркаса На гвозди.
Высота от пола до потолка Дом одноэтажный: 2,5 м. Дом с мансардой: 1-ый этаж- 2,5 м.
2-ой этаж (мансарда)- 2,3 м.
Дом в полтора и два этажа:
1-ый этаж 2,5 м.
2-ой этаж 2,4 м. в полутораэтажном доме
2,5 м. в двухэтажном доме.
Внешняя отделка стен Имитация бруса камерной сушки, сорт АВ, толщиной 17 мм. Монтаж через строганый брусок камерной сушки 45х45+/-5 мм. (вентилируемый фасад). Влаго-ветрозащитная мембрана- Ондутис А100.
Внутренняя отделка стен, перегородок Евровагонка камерной сушки, сорт АВ, толщиной 12,5 мм. по строганой рейке 20х40+/-5 мм. либо ГКЛ 12,5 мм.
Отделка потолка Евровагонка камерной сушки, сорт АВ толщиной, 12,5 мм. по строганой рейке 20х40+/-5 мм. либо ГКЛ 12,5 мм.
Пол чистовой Шпунтованная доска камерной сушки толщиной 35-36 мм. сорт АВ. по строганой рейке 20х40+/-5 мм. либо шпунтованная ДСП 16 мм. по разряженной обрешётке из строганой доски камерной сушки 20х95+/-5 мм.
Утепление (пол, потолок) Минеральная вата Knauf 150/200 мм. согласно выбранной толщине утепления.
Утепление стен Плитный утеплитель Rockwool, толщиной 150/200 мм. согласно выбранной толщине утепления.
Звукоизоляция перегородок Плитный утеплитель Rockwool, толщиной 100 мм.
Пароизоляция (стены, перегородки, пол, потолок) Плёнка Ондутис R70. Дополнительная герметизация нахлёстов/примыканий пароизоляционной плёнки клейкой лентой Delta.
Окна Двухкамерные стеклопакеты ПВХ белого цвета, профиль 60 мм. В комплекте: отливы, подоконники, москитные сетки.
Двери Входная- металлическая, утеплённая (Россия). Межкомнатные- филёнчатые.
Наличники на окна и двери Наличник деревянный, строганый, камерной сушки 70-90 мм. с двух сторон.
Лестница (при наличии второго этажа) Деревянная, одно или двухмаршевая. Перила- заводские резные, балясины- заводские точеные, устанавливаются стартовые точёные столбы. Ступени 40х200 мм. Тетива лестницы- 90х140 мм.
Крыша Двускатная, ломаная или вальмовая в соответствии с проектом.
Стропильная система Выполнена из строганой доски камерной сушки 45х145/45х195+/-5 мм. Шаг установки стропил 590 мм.
Обрешётка Выполняется из строганой доски камерной сушки толщиной 20х95+/-5 мм. Шаг крепления обрешетки 350 мм. Контробрешётка выполняется из строганого бруска камерной сушки 45х45+/-5 мм. Крепится по стропилам (вентиляционный зазор).
Подкровельная мембрана Ондутис А100
Кровельное покрытие (на выбор) Металлочерепица 0,45 мм. Цвет на выбор.
Фронтоны (при наличии) Каркас из строганой доски камерной сушки 45х145/45х195+/-5 мм. Обшиваются имитацией бруса камерной сушки, сорт АВ, толщиной 17 мм. Монтаж через строганый брусок камерной сушки 45х45+/-5 мм. (вентилируемый фасад). Влаго-ветрозащитная мембрана- Ондутис А100. Монтаж вентиляционных решёток.
Свесы крыши Ширина 400 мм. Подшиваются вагонкой камерной сушки, сорт АВ.
Терраса/балкон (при наличии) Устанавливаются опорные столбы из строганного бруса камерной сушки 140х140 мм.
Отделка потолка террасы/балкона Евровагонка камерной сушки толщиной 12,5 мм. сорт АВ.
Пол террасы/балкона Шпунтованная доска камерной сушки толщиной 35-36 мм. сорт АВ.
Ограждение террасы/балкона Перила- строганая доска. Балясины- точеные, фигурные. Либо ограждение в скандинавском стиле. Устанавливаются ступени у входа.
Допуск на геометрические параметры Составляет +/- 50 мм по длине с каждой стороны.
Допускается стыковка имитации бруса, вагонки и половой доски По всему периметру стен дома (если ширина и длина дома более 6,0 метров). Вагонки и доски пола в каждой отдельной комнате.
Допуски по имитации бруса, вагонке, доске +/- 5 мм.
В стоимость включена Доставка комплекта материала в радиусе 500 км. от г. Пестова Новгородской области и сборка дома на вашем участке.
Гарантия 5 лет.
Бытовка строительная 2,0х3,0 м. каркасно-щитовая. Стоимость 23000 руб. Остаётся на участке Заказчика.
Туалет 1,0х1,0 м. каркасно-щитовой. Стоимость 12000 руб. Остаётся на участке Заказчика.
Генератор Стоимость аренды на весь срок строительства 15000 руб. ГСМ за счёт Заказчика.

Строительство домов выполняется в двух видах: под усадку, когда сруб будет отстаиваться на протяжении определенного времени и под ключ.

В холодное время года эффективнее строить в мороз, чтобы каркас не промок, в летний период - не под дождем.

Оптимальными для сада или дачи являются дома на винтовых сваях, на нашем сайте вы увидите одноэтажные и полуторатажные варианты.

В случае если дом будет строиться для ПМЖ (постоянного проживания), рекомендуем теплые одноэтажные и двухэтажные коттеджи и дома на плитном и ленточном фундаменте.

Существует два варианта толщины утепления: 150 мм и 200 мм. Каркасные дома с утеплителем сто пятьдесят миллиметров получаются дешевле, но не такими теплыми.

Дополнительные услуги


Каркасный дом , согласно проекту 49 одноэтажный с теплой двускатной разновидностью крыши, обращает на себя повышенное внимание экологической чистотой, в связи с использованием ориентированно-стружечных плит, базальтовой и минеральной ваты, а это создает отличную морозостойкость, замечательный микроклимат в доме. Габариты дома составляют 6х9 м., суммарная пригодная для жизни площадь - кв.м.. Наша организация в кратчайшие сроки построит дом из каркаса по индивидуальному или типовому плану в Балашихе в удобное для вас время года и на любом типе грунта.

Популярные проекты


Дома из бруса с балконом Каркасные дома с мансардой Бани из бруса 12х6
хит продаж
Тип: с балконом, с маленькой террасой
Общая площадь: 2
1564600
от 1490100
хит продаж
Тип: с маленькой террасой
Общая площадь: 2
2110600
от 2010100
хит продаж
Тип:
Общая площадь: 2
3318100
от 3160100
Дома из бруса

Заказать или задать вопрос



Заказать или задать вопрос

Заказать звонок